Arbeitsprojekt Bauen & Wohnen – Praxisorientiertes Lernen für die Zukunft
Im Arbeitsprojekt Bauen & Wohnen entwickeln Schüler/innen praxisnahe Lösungen für komplexe Aufgaben und vertiefen ihre Kenntnisse in Mathematik, Deutsch und WAT gemäß dem Rahmenlehrplan der Klasse 9.
Am Beispiel der Wohnraumgestaltung erlernen die Schüler/innen essentielle Fähigkeiten in angewandter Mathematik – von Grundrechenarten über Flächenberechnung bis hin zu Geometrie und der Anwendung von Formeln.
In Einzel- und Gruppenarbeit planen die SchülerInnen ihre eigene Wohnung und beschäftigen sich mit den Themen Budgetplanung, Raumgestaltung, Elektroinstallation und Bautechnik. Sie erfahren, wie Bautechnik zur Energieeinsparung beitragen kann.
Der Unterricht findet in praxisorientierten Werkstätten (Metall- und Elektrowerkstatt) sowie in Unterrichtsräumen statt, wo die Schüler/innen den Umgang mit Werkzeugen und Materialien erlernen. In der Textilwerkstatt wird zusätzlich das Arbeiten mit der Nähmaschine geübt.
Ein wichtiger Bestandteil des Projekts ist die künstlerische Gestaltung, in der Schüler/innen Farblehre, Materialkunde und Möbeldesign kennenlernen.
Das Projekt Bauen & Wohnen bietet einen praxisnahen Einstieg in verschiedene handwerkliche Berufsfelder:
- Metall (Fachkraft für Metalltechnik, Metallbauer/in inkl. Fachrichtung Metallgestalter/in, Feinmechaniker/in), Holz (Tischler/in, Zimmerer/in, Fachkraft Holz- und Bautenschutz)
- Elektrotechnik (Industriemechaniker/in, Elektroniker/in)
- Raumausstattung (Raumausstatter/in, Polsterer/in, Bodenleger/in)
Bauen & Wohnen im Überblick
Flächenberechnung
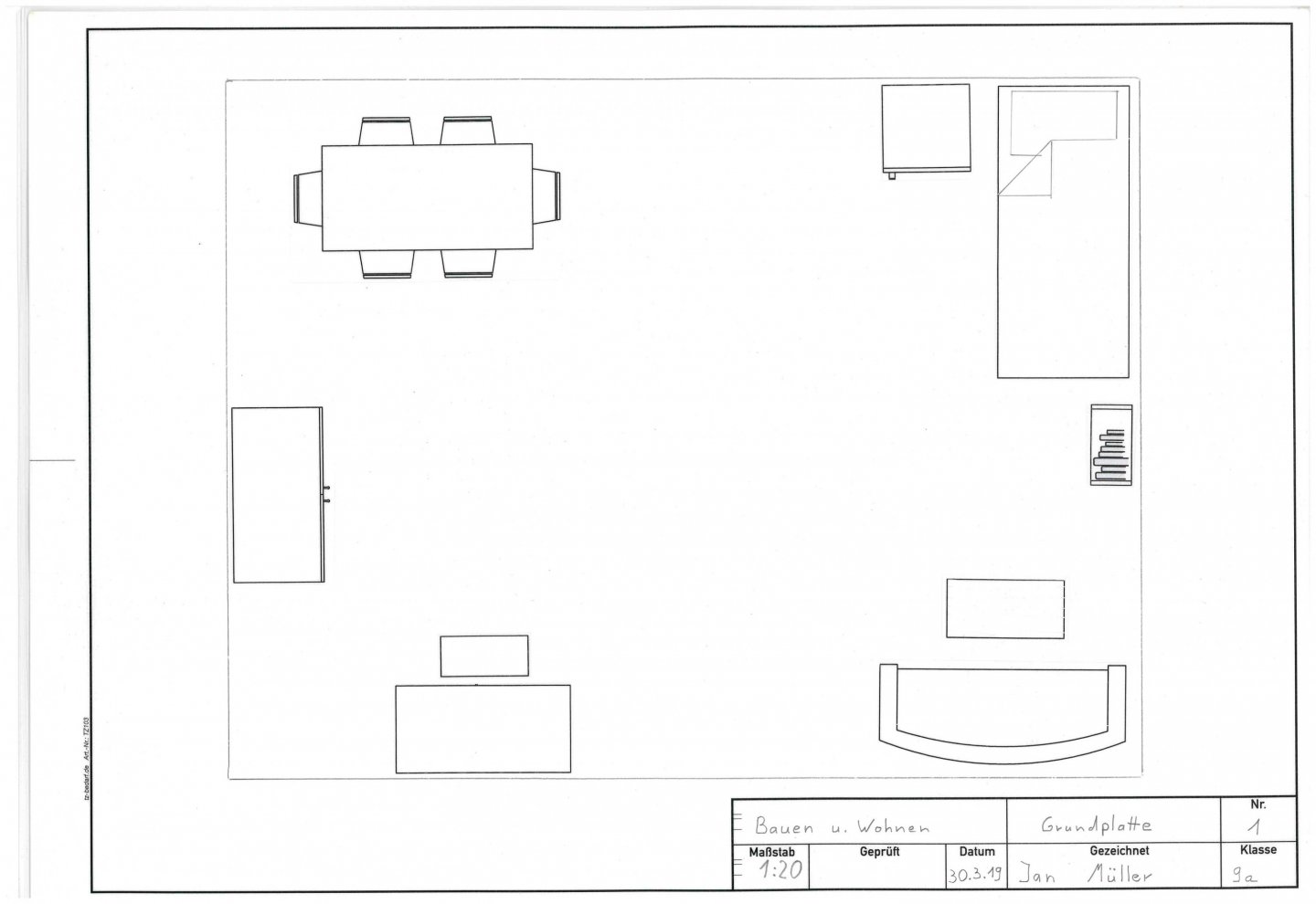
Für den maßstabsgetreuen Nachbau der Wohnung (1:20) werden Flächen und Umfänge der Räume exakt berechnet. So werden mathematische Inhalte anschaulich und praxisnah vermittelt.
Technisches Zeichnen
Durch das Erstellen präziser Grundrisse mit genauen Maßen, Tür- und Fensterpositionen lernen die Schüler/innen die Regeln technischer Zeichnungen kennen und es entsteht die Grundlage für den späteren Modellbau der Wohnung.
Budgetplanung
Mithilfe eines festgelegten virtuellen Budgets wird die Einrichtung der Wohnung geplant. Im Möbelhaus wählen die Schüler/innen passende Möbel aus, kalkulieren Kosten und setzen ihre Auswahl anschließend maßstabsgetreu im Modell um.
Farblehre
Die Wirkung von Farben wird anhand theoretischer Grundlagen untersucht und direkt im Wohnungsmodell umgesetzt. Ziel ist es, passende Farbkonzepte für das Modell zu entwickeln.
Materialkunde
Verschiedene Bodenbeläge, Wandmaterialien und Stoffe für Möbel und Dekoration werden im Modell eingesetzt. So lernen die Schüler/innen, wie Materialien Komfort, Gesundheit und Alltagstauglichkeit beeinflussen und berechnen die Kosten für Bodenbelag, Tapete, Farbe und textile Elemente.
Möbeldesign
Die 2D-Entwürfe der Schüler/innen werden im Maßstab 1:20 als Modellmöbel wie Bett, Sofa oder Tisch umgesetzt. Dabei rechnen sie die Originalmaße um, fertigen Möbel aus verschiedenen Materialien an und gestalten diese farbig.
Modellbau
Die Wohnung wird im Maßstab 1:20 als Miniaturmodell gebaut. Dabei entstehen zunächst die Holzwände mit Türen und Fenstern, bevor der Raum farblich gestaltet wird.
Werkstattarbeit
Aus den 2D-Möbelentwürfen entstehen im Modell 3D-Möbelstücke, wobei die Schüler/innen den Umgang mit Werkzeugen wie Sägen und Nähmaschine erlernen. Dabei werden auch textile Elemente wie Gardinen, Kissen und Bettwäsche maßstabsgetreu gefertigt und direkt in die Gestaltung des Wohnmodells integriert.
Metall, Elektrik und Textil
LEDs bringen Licht und Atmosphäre ins Modell, während Grundlagen zu Stromkreisen vermittelt werden. Durch die Verbindung von Metall, Textil und Elektrik entsteht im Modell ein ganzheitlich gestalteter Wohnraum.









